Ponuda za izgradnju objekata po konceptu Samogrejne eko-kuće
VEMIRC - Biro za zelenu arhitekturu i stručni tim zadužen za realizaciju investicionih projekata može Vam pružiti sve informacije i usluge o ovakvom načinu gradnje od konsaltinga do projektovanja ako poželite da i Vi imate jednu ovakvu kuću.
U našoj ponudi nudimo Vam projektovanje sledećih vrsta objekata:
| |
|
| |
- stambeno-poslovni objekti
|
| |
|
| |
|
| |
- adaptacija postojećih objekata
|
| |
- mini naselja i stambeni kompleksi
|
Iz naše ponude:
Frontalni izgled prizemne samogrejne eko-kuće
|
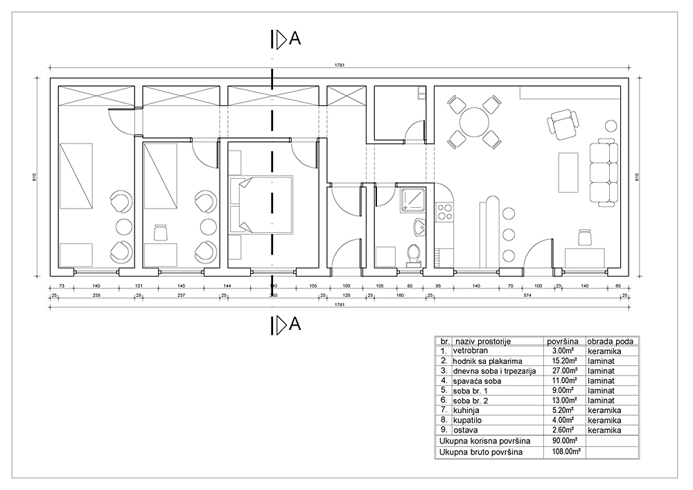
Samogrejna eko-kuća :: spratni stambeni objekat 125m2 - osnova prizemlja
|
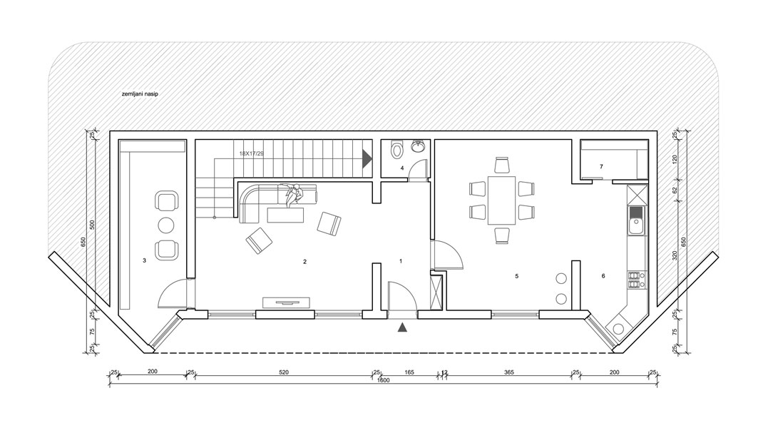
Samogrejna eko-kuća :: prizemni stambeni objekat 90m2 - osnova prizemlja
|
Samogrejna eko-kuća :: spratni stambeni objekat 125m2 - osnova sprata
|
prizemni stambeni objekat |
spratni stambeni objekat |
Za kompletnu ponudu pogledajte naš KATALOG.
Ponuda sa naše strane uključuje sledeće usluge:
Licenca za gradnju
Odobrenje za komercijalnu eksploataciju patentom zaštićenog tehničkog rešenja za pojedinačne ili više objekata.
Konsalting
Konsultantske usluge u vidu tehničkog savetovanja i direktnog angažovanja oko pripreme i analize investicionih projekata:
| |
- Konsalting na polju energetske efikasnosti u zgradarstvu i održive gradnje
|
| |
- Razvijanje ideje investicionog projekta
|
| |
- Analiza i ispitivanje tehničke izvodljivosti gradnje na predmetnoj lokaciji
|
| |
- Planiranje i procena troškova i vrednosti investicionih projekata
|
| |
- Konsultanski poslovi na polju pravno-tehničke regulative
|
| |
- Usluge tehničkog savetovanja
|
| |
|
Projektovanje
Izrada projekta kuće željene namene, spratnosti i kvadrature:
| |
- Definisanje projektnog zadatka
|
| |
|
| |
- Izrada projektno-tehničke dokumentacije za gradnju (arhitektonski projekti, projekti konstrukcije, projekti vodovoda i kanalizacije, električnih instalacija…)
|
| |
- Tehnička kontrola projektne dokumentacije
|
| |
- Izrada elaborata energetske efikasnosti (energetski pasoš)
|
Upravljanje projektom
Sve prateće aktivnosti vezane za proces investicione izgradnje:
| |
- Vođenje projekta izgradnje - projektni menadžment
|
| |
- Koordinacija procesa projektovanja
|
| |
- Koordinacija prethodnih radova: geološki istražni radovi - geotehničko ispitivanje i istraživanje, geodetski radovi...
|
| |
- Usluge prikupljanja pravno-tehničke dokumentacije i konsultanski poslovi na polju pravno-tehničke regulative
|
| |
- Izrada licitacionih elaborata i tenderske dokumentacije
|
| |
- Selekcija i odabir ponuda za izvođenje radova
|
| |
- Selekcija i odabir ponuda materijala za gradnju i dodatne opreme
|
| |
- Stručni nadzor nad izvođenjem radova
|
| |
|
| |
- Usluge tehničkog savetovanja
|
| |
|
Za više informacija možete nas kontaktirati.
Interesovanje za gradnju
Ako se odlučite za gradnju samogrejne ekološke kuće i donesete investicionu odluku, od autora akademika Veljka Milkovića dobićete licencu za gradnju po konceptu samogrejne eko-kuće, nakon čega će naš projektni biro, uz prethodni konsalting, izraditi svu projektno-tehničku dokumentaciju za gradnju po Vašoj idejnoj zamisli funkcije i namene objekta. Nakon obezbeđenja sve neophodne pravno-tehničke dokumentacije za gradnju, potrebno je angažovati još izvođačku firmu koja će izgraditi objekat po usvojenom projektu.
Sve preciznije detalje oko konkretnog projektnog zadatka dobićemo nakon analize idejne zamisli i sagledavanja tehničke mogućnosti izgradnje na predmetnoj lokaciji.
Odgovore na najčešća pitanja o gradnji samogrejnih kuća, ceni izgradnje i drugim tehničkim karakteristikama možete pronaći na strani Najčešće postavljena pitanja.
Ako želite da zajedno sa nama realizujete viziju Vašeg doma budućnosti i izgradite Vašu samogrejnu ekološku kuću, molimo Vas za početak pošaljite nam Vaš specifikovani ZAHTEV ZA IZGRADNJU.

|