Novi turistički potencijali

Samogrejna eko-kuća – ekskluzivni
turističko-ugostiteljski objekat


Vaš dom budućnosti

Kuća bez klime i računa za grejanje

Leti hladno, zimi toplo

Uštede u grejanju do 85%, hlađenju 100%, osvetljenju oko 30%

Zimi toplo bez grejanja

Najbolji primer energetske efikasnosti u praksi

Energy Globe Award

Samogrejna eko-kuća nacionalni pobednik za Republiku Srbiju za 2010. godinu

Svetski Dan Habitata

Samogrejne kuće predstavnik Republike Srbije na izložbi "Building the Future We Want"


Katalog projekata kuća

Katalog projekata samogrejnih kuća sa primerima idejnih rešenja jednoporodičnih stambenih objekata i prikazima osnova prizemnih i spratnih kuća (raspored prostorija, funkcionalnost, kvadratura) u kategorijama malih objekata do 50m2, klasičnih stambenih kuća od 50-100m2 i većih stambenih rezidencija preko 100m2.
Svi dole prikazani planovi kuća su samo primeri mogućih idejnih rešenja samogrejnih kuća i moguće je iste modifikovati i prilagođavati u skladu sa željama budućih stanara i investitora. Ako želite da za Vaš novi topli dom sagradite jednu od samogrejnih kuća, molimo Vas pogledajte našu Ponudu ili nam pošaljite Vaš specifikovani Zahtev za izgradnju.

Prizemni objekti

do 50m2

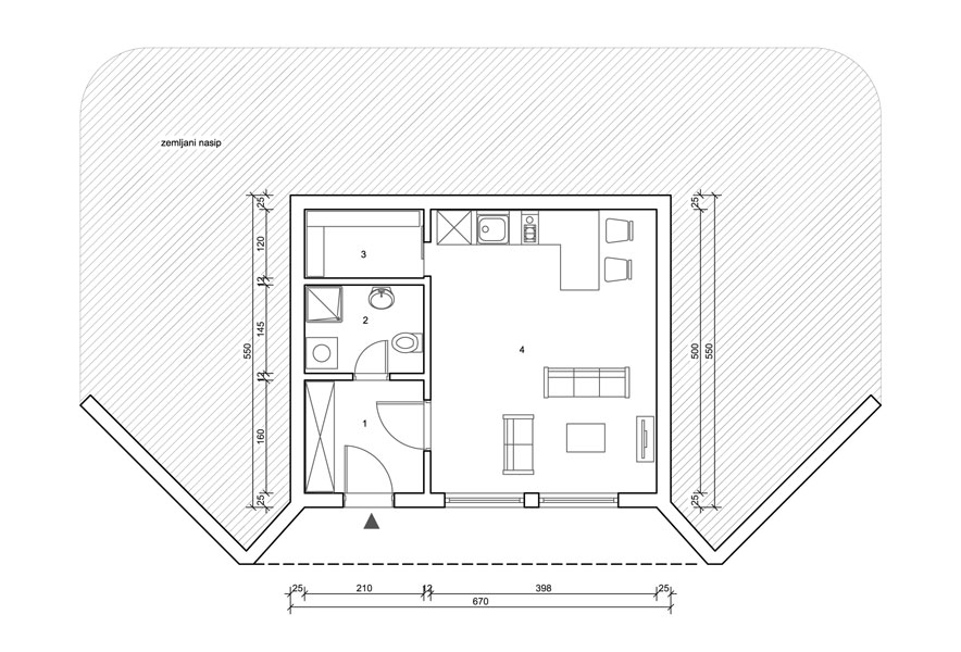
projekat br. 1

Osnova prizemnog stambenog objekta - 30m2
Osnova prizemnog stambenog objekta - 30m2 - učitavanje...

Samogrejna eko-kuća :: prizemni stambeni objekat 30m2 - osnova prizemlja

osnova prizemlja

prizemni stambeni objekat - 30m2
preuzmite plan

šifra projekta: SEK - P1 - 30m2

Niskoenergetska kuća - pasivna solarna gradnja - mali stambeni objekat: kuća, vikendica, letnja kuća...

Tehničke karakteristike
tip: stambeni objekat
spratnost: prizemni - P
kvadratura (neto): 30 m2
kvadratura (bruto): 36,85 m2
broj soba: 1

 
Prostorije
 
naziv
m2
1. Ulaz
4,17
2. Kupatilo
3,27
3. Ostava
2,54
4. Kuhinja sa trpezarijom
i dnevnim boravkom
19,89
Ukupna korisna površina
30,00
Ukupna bruto površina
36,85

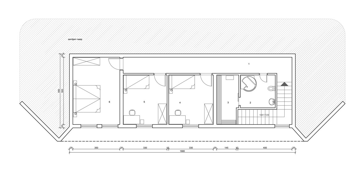
projekat br. 2

Osnova prizemnog stambenog objekta - 50m2
Osnova prizemnog stambenog objekta - 50m2 - učitavanje...

Samogrejna eko-kuća :: prizemni stambeni objekat 50m2 - osnova prizemlja

osnova prizemlja

prizemni stambeni objekat - 50m2
preuzmite plan

šifra projekta: SEK - P2 - 50m2

Niskoenergetska kuća - pasivna solarna gradnja - mali stambeni objekat: kuća, vikendica, letnja kuća...

Tehničke karakteristike
tip: stambeni objekat
spratnost: prizemni - P
kvadratura (neto): 50 m2
kvadratura (bruto): 60,50 m2
broj soba: 2

 
 
Prostorije
 
naziv
m2
1. Ulaz
4,43
2. Kupatilo
3,02
3. Ostava
2,54
4. Kuhinja sa trpezarijom
i dnevnim boravkom
21,39
5. Spavaća soba
18,75
Ukupna korisna površina
50,00
Ukupna bruto površina
60,50

od 50-100m2

projekat br. 3

Osnova prizemnog stambenog objekta - 75m2
Osnova prizemnog stambenog objekta - 75m2 - učitavanje...

Samogrejna eko-kuća :: prizemni stambeni objekat 75m2 - osnova prizemlja

osnova prizemlja

prizemni stambeni objekat - 75m2
preuzmite plan

šifra projekta: SEK - P3 - 75m2

Niskoenergetska kuća - pasivna solarna gradnja - stambeni objekat: kuća, vikendica, letnja kuća...

Tehničke karakteristike
tip: stambeni objekat
spratnost: prizemni - P
kvadratura (neto): 75 m2
kvadratura (bruto): 89,10 m2
broj soba: 3

 
 
Prostorije
 
naziv
m2
1. Ulaz
5,42
2. WC
1,42
3. Kuhinja sa trpezarijom
i dnevnim boravkom
26,82
4. Hodnik sa garderoberom
9,72
5. Spavaća soba
10,74
6. Kupatilo
4,82
7. Spavaća soba
15,59
Ukupna korisna površina
75,00
Ukupna bruto površina
89,10

projekat br. 4

Osnova prizemnog stambenog objekta - 90m2
Osnova prizemnog stambenog objekta - 90m2 - učitavanje...

Samogrejna eko-kuća :: prizemni stambeni objekat 90m2 - osnova prizemlja

osnova prizemlja

prizemni stambeni objekat - 90m2
preuzmite plan

šifra projekta: SEK - P4 - 90m2

Niskoenergetska kuća - pasivna solarna gradnja - stambeni objekat: kuća, vikendica, letnja kuća...

Tehničke karakteristike
tip: stambeni objekat
spratnost: prizemni - P
kvadratura (neto): 90 m2
kvadratura (bruto): 107,25 m2
broj soba: 3

 
 
Prostorije
 
naziv
m2
1. Ulaz
5,81
2. WC
1,42
3. Kuhinja sa trpezarijom
i dnevnim boravkom
33,47
4. Ostava
2,06
5. Hodnik sa garderoberom
12,13
6. Spavaća soba
17,80
7. Sauna
1,82
8. Kupatilo
4,81
9. Spavaća soba
10,76
Ukupna korisna površina
90,00
Ukupna bruto površina
107,25

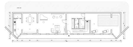
projekat br. 5

Osnova prizemnog stambenog objekta - 100m2
Osnova prizemnog stambenog objekta - 100m2 - učitavanje...

Samogrejna eko-kuća :: prizemni stambeni objekat 100m2 - osnova prizemlja

osnova prizemlja

prizemni stambeni objekat - 100m2
preuzmite plan

šifra projekta: SEK - P5 - 100m2

Niskoenergetska kuća - pasivna solarna gradnja - stambeni objekat: kuća, vikendica, letnja kuća...

Tehničke karakteristike
tip: stambeni objekat
spratnost: prizemni - P
kvadratura (neto): 100 m2
kvadratura (bruto): 119,35 m2
broj soba: 3

 
 
Prostorije
 
naziv
m2
1. Ulaz
5,75
2. WC
1,23
3. Dnevni boravak
21,68
4. Ostava
1,54
5. Kuhinja sa trpezarijom
16,80
6. Vešernica
2,23
7. Hodnik
8,84
8. Garderober
4,05
9. Sauna
2,62
10. Kupatilo
5,62
11. Spavaća soba
11,64
12. Spavaća soba
18,00
Ukupna korisna površina
100,00
Ukupna bruto površina
119,35

projekat br. 6

Osnova prizemnog stambenog objekta - 100m2 v.2.
Osnova prizemnog stambenog objekta - 100m2 v.2. - učitavanje...

Samogrejna eko-kuća :: prizemni stambeni objekat 100m2 - osnova prizemlja

osnova prizemlja

prizemni stambeni objekat - 100m2
preuzmite plan

šifra projekta: SEK - P6 - 100m2

Niskoenergetska kuća - pasivna solarna gradnja - stambeni objekat: kuća, vikendica, letnja kuća...

Tehničke karakteristike
tip: stambeni objekat
spratnost: prizemni - P
kvadratura (neto): 100 m2
kvadratura (bruto): 119,35 m2
broj soba: 4

 
 
Prostorije
 
naziv
m2
1. Ulaz
5,75
2. WC
1,23
3. Dnevni boravak
17,45
4. Ostava
1,54
5. Kuhinja sa trpezarijom
16,80
6. Vešernica
2,23
7. Hodnik
9,87
8. Spavaća soba
10,52
9. Kupatilo
5,62
10. Spavaća soba
11,64
11. Spavaća soba
17,03
Ukupna korisna površina
100,00
Ukupna bruto površina
119,35

Spratni objekti

preko 100m2

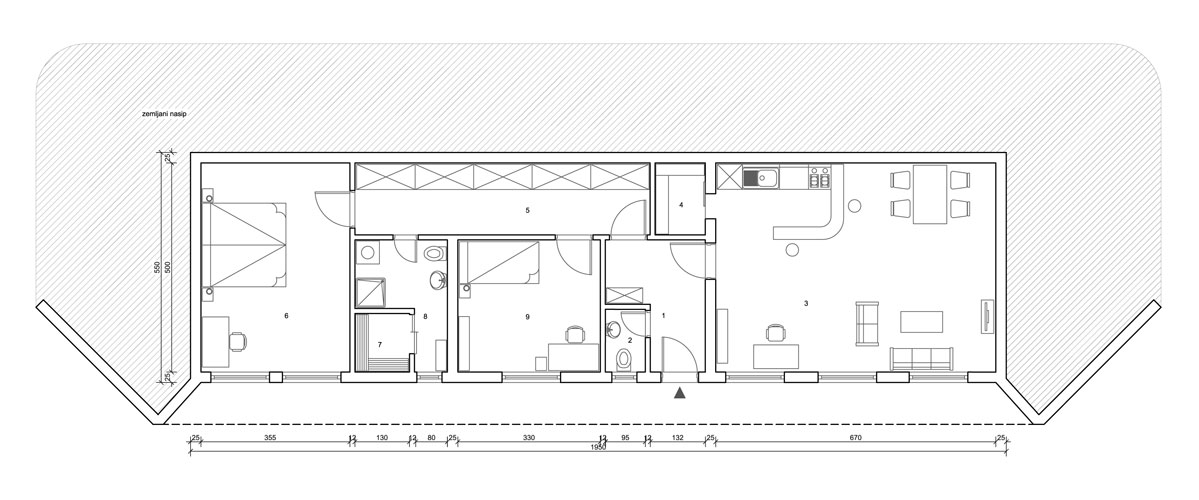
projekat br. 7

Osnova spratnog stambenog objekta - 125m2 - prizemlje
Osnova spratnog stambenog objekta - 125m2 - prizemlje - učitavanje...

Samogrejna eko-kuća :: spratni stambeni objekat 125m2 - osnova prizemlja

osnova prizemlja

spratni stambeni objekat - 125m2
preuzmite plan

šifra projekta: SEK - S1 - 125m2

Niskoenergetska kuća - pasivna solarna gradnja - veći stambeni objekat: kuća, vikendica, letnja kuća...

Tehničke karakteristike
tip: stambeni objekat
spratnost: spratni - P + 1
kvadratura (neto): 125 m2
kvadratura (bruto): 153,75 m2
broj soba: 4

 
Osnova spratnog stambenog objekta - 125m2 - sprat
Osnova spratnog stambenog objekta - 125m2 - sprat - učitavanje...

Samogrejna eko-kuća :: spratni stambeni objekat 125m2 - osnova sprata

osnova sprata
Prostorije - prizemlje
 
naziv
m2
1. Ulaz
5,72
2. Dnevni boravak
18,63
3. Biblioteka - atelje
10,97
4. WC
1,62
5. Trpezarija
19,75
6. Kuhinja
8,94
7. Ostava
2,38
  Stepenišni prostor
7,11
Ukupna korisna površina
75,00
Ukupna bruto površina
90,50

Prostorije - sprat
 
naziv
m2
1. Hodnik
3,48
2. Spavaća soba
18,04
3. Kupatilo
2,72
4. Spavaća soba
20,95
Stepenišni prostor
7,11
Ukupna korisna površina
50,00
Ukupna bruto površina
63,25
 
 

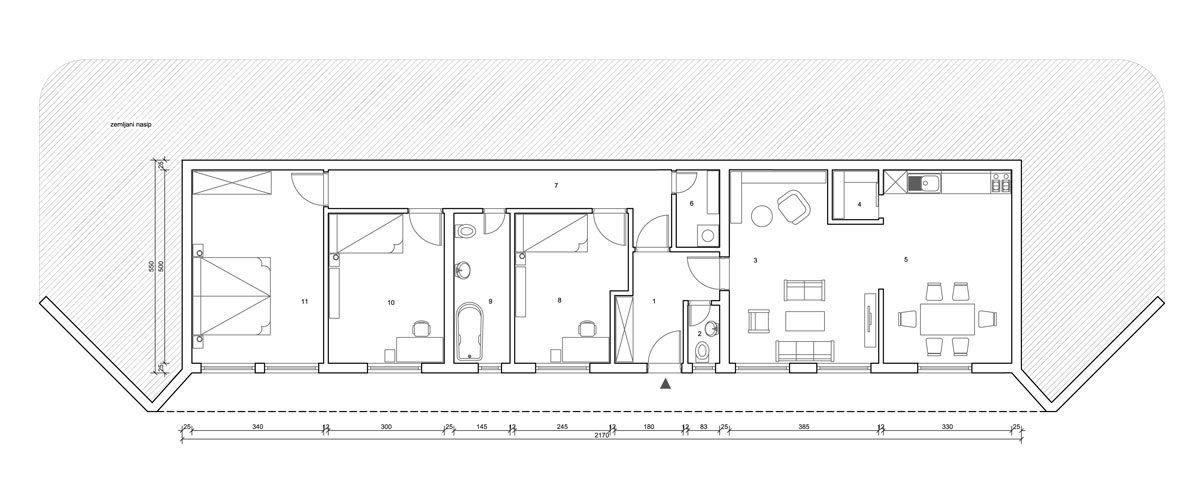
projekat br. 8

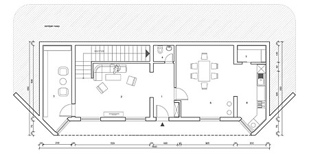
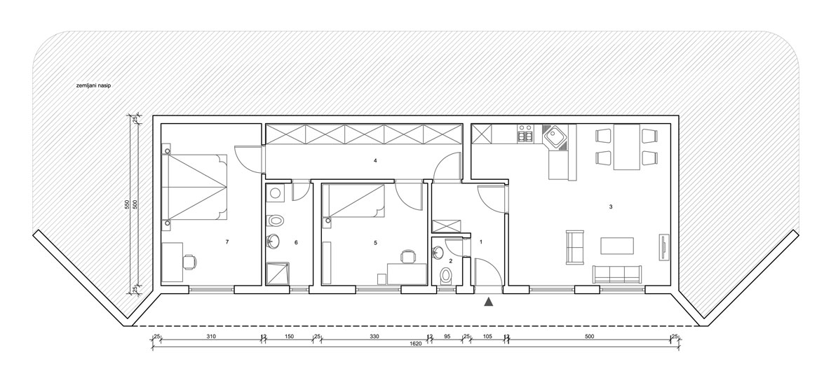
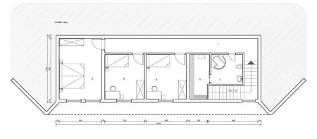
Osnova spratnog stambenog objekta - 145m2 - prizemlje
Osnova spratnog stambenog objekta - 145m2 - prizemlje - učitavanje...

Samogrejna eko-kuća :: spratni stambeni objekat 145m2 - osnova prizemlja

osnova prizemlja

spratni stambeni objekat - 145m2
preuzmite plan

šifra projekta: SEK - S2 - 145m2

Niskoenergetska kuća - pasivna solarna gradnja - veći stambeni objekat: kuća, vikendica, letnja kuća...

Tehničke karakteristike
tip: stambeni objekat
spratnost: spratni - P + 1
kvadratura (neto): 145 m2
kvadratura (bruto): 179 m2
broj soba: 4

 
Osnova spratnog stambenog objekta - 145m2 - sprat
Osnova spratnog stambenog objekta - 145m2 - sprat - učitavanje...

Samogrejna eko-kuća :: spratni stambeni objekat 145m2 - osnova sprata

osnova sprata
Prostorije - prizemlje
 
naziv
m2
1. Ulaz - hodnik
13,06
2. Dnevni boravak
19,18
3. Trpezarija
15,05
4. Kuhinja
8,30
5. Ostava
2,43
6. WC
2,16
7. Vešernica
4,59
8. Biblioteka - atelje
13,34
  Stepenišni prostor
7,11
Ukupna korisna površina
85,00
Ukupna bruto površina
103,00

Prostorije - sprat
 
naziv
m2
1. Hodnik
12,39
2. Kupatilo
7,48
3. Sauna
3,83
4. Garderober
2,59
5. Spavaća soba
12,10
6. Spavaća soba
17,21
Stepenišni prostor
7,11
Ukupna korisna površina
60,00
Ukupna bruto površina
76,00
 
 

projekat br. 9

Osnova spratnog stambenog objekta - 175m2 - prizemlje
Osnova spratnog stambenog objekta - 175m2 - prizemlje - učitavanje...

Samogrejna eko-kuća :: spratni stambeni objekat 175m2 - osnova prizemlja

osnova prizemlja

spratni stambeni objekat - 175m2
preuzmite plan

šifra projekta: SEK - S3 - 175m2

Niskoenergetska kuća - pasivna solarna gradnja - veći stambeni objekat: luksuzna vila, ekskluzivna stambena rezidencija...

Tehničke karakteristike
tip: stambeni objekat
spratnost: spratni - P + 1
kvadratura (neto): 175 m2
kvadratura (bruto): 212,40 m2
broj soba: 5

 
Osnova spratnog stambenog objekta - 175m2 - sprat
Osnova spratnog stambenog objekta - 175m2 - sprat - učitavanje...

Samogrejna eko-kuća :: spratni stambeni objekat 175m2 - osnova sprata

osnova sprata
Prostorije - prizemlje
 
naziv
m2
1. Ulaz - hodnik
11,64
2. Dnevni boravak
33,91
3. Trpezarija
16,39
4. Kuhinja
8,30
5. Ostava
2,43
6. WC
2,16
7. Vešernica
3,20
8. Biblioteka - atelje
13,34
  Stepenišni prostor
7,11
Ukupna korisna površina
100,00
Ukupna bruto površina
120,00

Prostorije - sprat
 
naziv
m2
1. Hodnik
15,79
2. Kupatilo
7,03
3. Sauna
4,73
4. Spavaća soba
12,21
5. Spavaća soba
12,21
6. Spavaća soba
17,47
Stepenišni prostor
7,11
Ukupna korisna površina
75,00
Ukupna bruto površina
92,40
 
 

projekat br. 10

Osnova spratnog stambenog objekta - 225m2 - prizemlje
Osnova spratnog stambenog objekta - 225m2 - prizemlje - učitavanje...

Samogrejna eko-kuća :: spratni stambeni objekat 225m2 - osnova prizemlja

osnova prizemlja

spratni stambeni objekat - 225m2
preuzmite plan

šifra projekta: SEK - S4 - 225m2

Niskoenergetska kuća - pasivna solarna gradnja - veći stambeni objekat: luksuzna vila, ekskluzivna stambena rezidencija sa saunom i unutrašnjim bazenom...

Tehničke karakteristike
tip: stambeni objekat
spratnost: spratni - P + 1
kvadratura (neto): 225 m2
kvadratura (bruto): 269 m2
broj soba: 5

 
Osnova spratnog stambenog objekta - 225m2 - sprat
Osnova spratnog stambenog objekta - 225m2 - sprat - učitavanje...

Samogrejna eko-kuća :: spratni stambeni objekat 225m2 - osnova sprata

osnova sprata
Prostorije - prizemlje
 
naziv
m2
1. Ulaz - hodnik
11,64
2. Dnevni boravak
33,91
3. Trpezarija
16,39
4. Kuhinja
8,30
5. Ostava
2,43
6. WC
2,16
7. Vešernica
3,20
8. Bazen
38,71
  Stepenišni prostor
7,11
Ukupna korisna površina
125,00
Ukupna bruto površina
148,00

Prostorije - sprat
 
naziv
m2
1. Hodnik
15,79
2. Kupatilo
6,97
3. Sauna
4,73
4. Spavaća soba
12,22
5. Spavaća soba
12,22
6. Spavaća soba
17,34
7. Spavaća soba
24,62
Stepenišni prostor
7,11
Ukupna korisna površina
100,00
Ukupna bruto površina
121,00
 
 
 
VEMIRC - Biro za zelenu arhitekturu i zdravo stanovanje
Razvoj i projektovanje samogrejnih naselja, ekoloških kuća budućnosti, maksimalne ugodnosti uz maksimalno iskorišćenje alternativnih izvora energije i maksimalne energetske efikasnosti uz zdrav i bezbedan život u skladu s prirodom.
zelena gradnja, pasivna solarna arhitektura, ekološke kuće, solarne kuće, niskoenergetski objekti, energetski efikasne zgrade, štedljive kuće, zdravo stanovanje, energetska efikasnost u zgradarstvu, obnovljivi izvori energije